Exklusive Wohnqualität mit durchdachtem Design
- Toplage in direkter Nähe zur Alster sowie zum Leinpfad

- Attraktive Kapitalanlage mit stabiler Rendite

- Erstbezug nach Renovierung & Sanierung

- Ausblick in Villengärten oder auf den Leinenpfad Kanal

- Zukunftssichere Wertanlage in 1A Lage von Winterhude

- Sanierte Balkone aus 2025 sowie neue Gasheizung aus 2018
Diese exklusive Immobilie in Bestlage Hamburgs vereint hochwertige Ausstattung mit nachhaltiger Investitionssicherheit. Nur eine Gehminute von der Alster entfernt, überzeugt das Objekt durch seine erstklassige Lage und eine moderne, zeitgemäße Gestaltung.
Einige Einheiten wurden 2025 umfassend saniert und hochwertig ausgestattet, während bestehende Mietverträge mit attraktiven Mieteinnahmen eine langfristige Planungssicherheit bieten. Die exzellente Infrastruktur und die unmittelbare Nähe zur Alster garantieren höchste Lebensqualität und nachhaltiges Wertsteigerungspotenzial.
Mit dieser einzigartigen Kombination aus Stil, Komfort und Investitionssicherheit entsteht ein Wohnraum, der Ästhetik und Funktionalität harmonisch verbindet – für urbanes Wohnen auf höchstem Niveau.
1/7
Maria Louise
5 Wohneinheiten mit 1 bis 4 Zimmern ab ca. 44 m² 1 Gewerbeeinheit mit ca. 137 m²
Einheit 1
Gewerbeeinheit im UG-EG
5 Zimmer mit ca. 137,41 m² Gewerbefläche 949.000,00 €
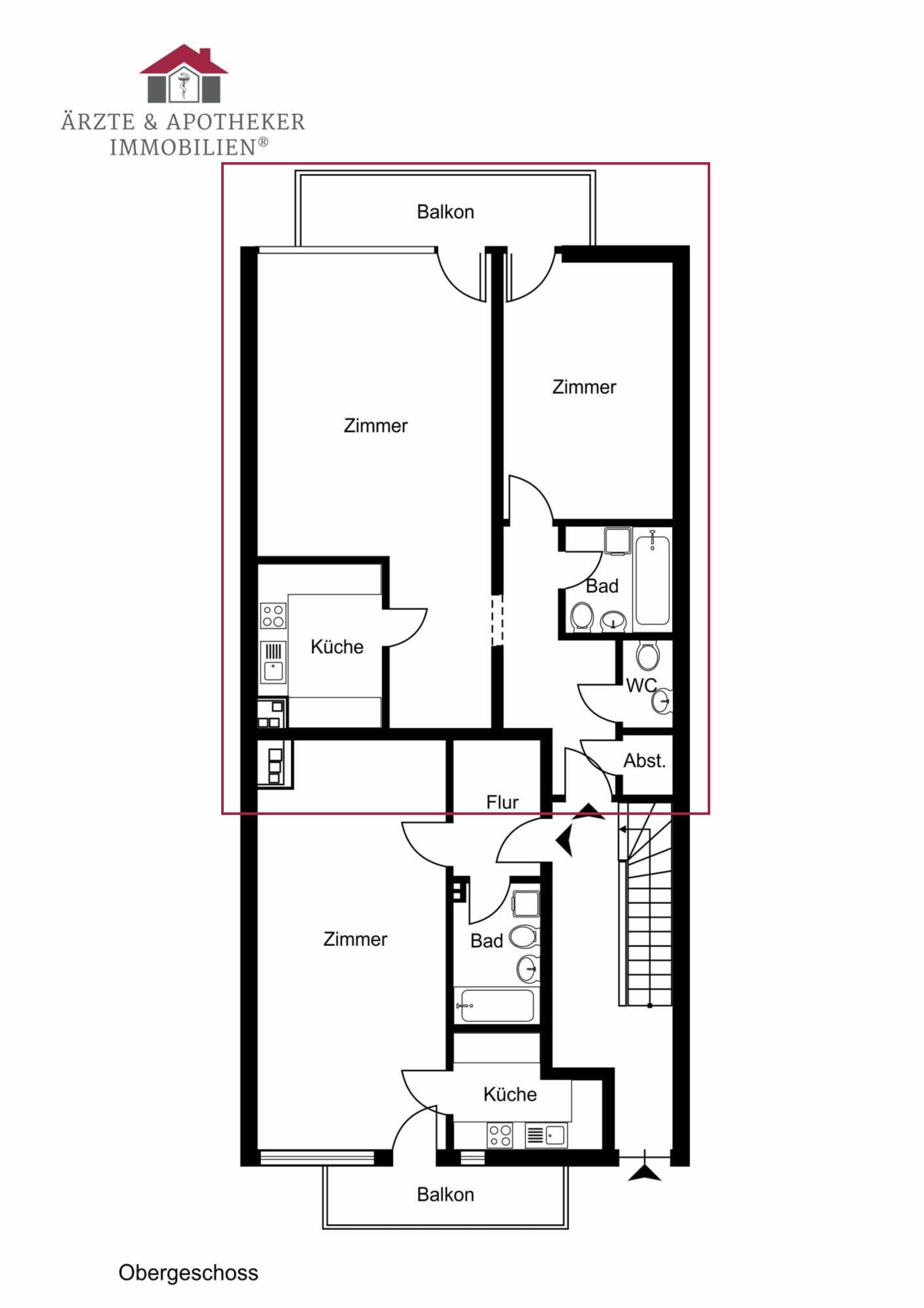
Wohnung 2
1. Obergeschoss
1 Zimmer mit ca. 42,70 m² Wohnfläche 449.000,00 €
Wohnung 3 - Vermietet
1. Obergeschoss
2 Zimmer mit ca. 70,84 m² Wohnfläche 719.000,00 €
Wohnung 4
2. Obergeschoss
1 Zimmer mit ca. 42,70 m² Wohnfläche 459.000,00 €
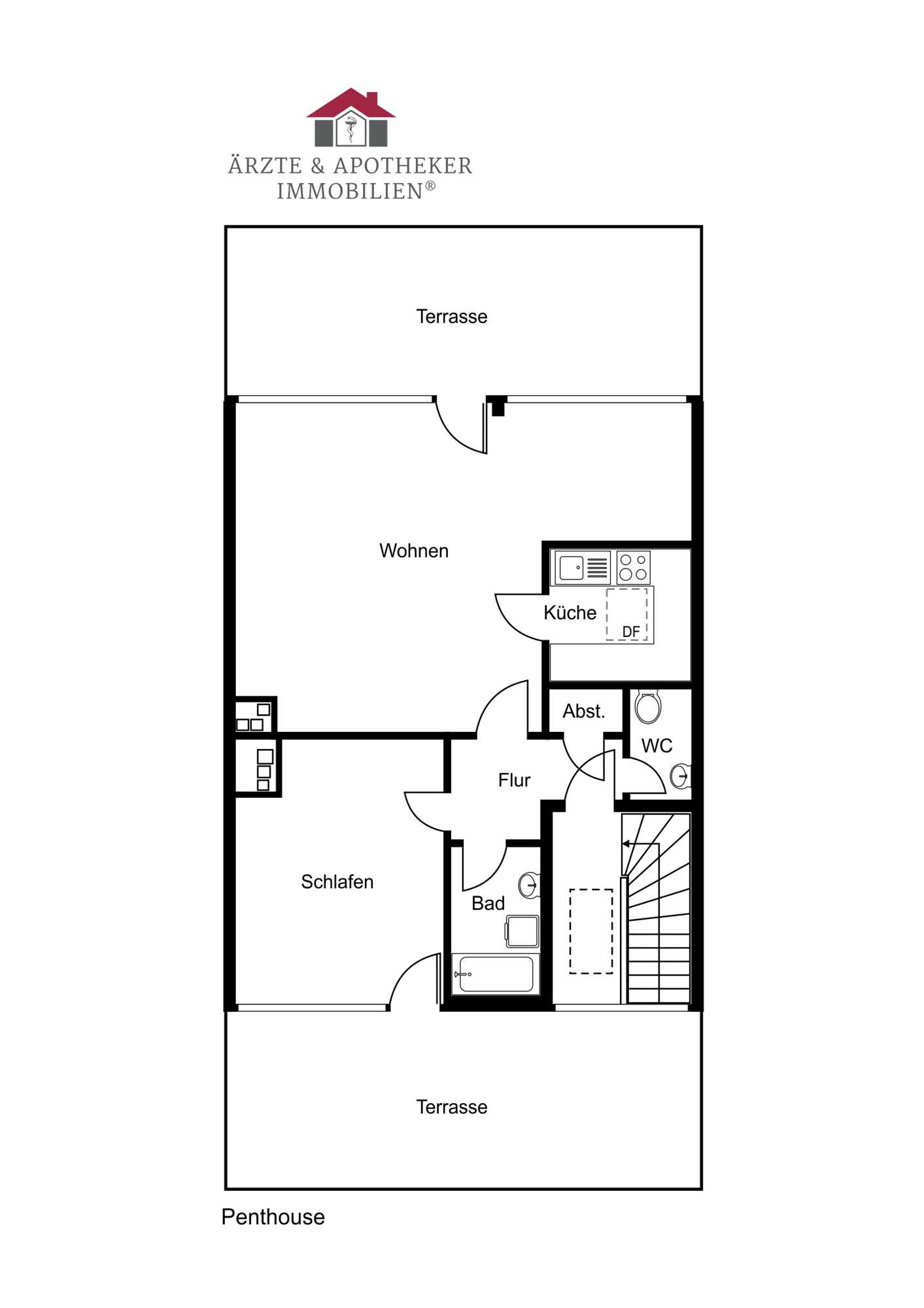
Wohnung 5
2. Obergeschoss
2 Zimmer mit ca. 70,84 m² Wohnfläche 798.000,00 €
Wohnung 6
3. Obergeschoss
2 Zimmer mit ca. 92,29 m² Wohnfläche 1.098.000,00 €
Die Lage - zwischen Alster und Rondeelteich
Das Objekt besticht durch seine privilegierte Lage in Winterhude, einem der begehrtesten Stadtteile Hamburgs. Geprägt von repräsentativen Altbauten und charmanten Stadtvillen, vereint die Umgebung eine exklusive Wohnqualität mit urbanem Flair. Nur wenige Gehminuten entfernt lädt der weitläufige Stadtpark mit seinen Grünflächen, Sport- und Freizeitmöglichkeiten sowie dem Stadtparksee zu erholsamen Stunden inmitten der Natur ein.
Zugleich bietet das Viertel eine perfekte Balance aus lebendiger Urbanität und entspanntem Rückzugsort. Die hervorragende Infrastruktur sorgt für eine optimale Anbindung: Die U-Bahn-Station „Sierichstraße“ (U3) ist bequem zu Fuß erreichbar und verbindet die Bewohner schnell mit der Hamburger Innenstadt. Mehrere Buslinien sowie der nahegelegene Ring 2 ermöglichen eine schnelle Erreichbarkeit anderer Stadtteile und der Autobahn.
Auch das gastronomische und kulturelle Angebot in Winterhude lässt keine Wünsche offen. Die nahegelegene Gertigstraße sowie der Mühlenkamp sind bekannt für ihre erstklassige Gastronomie – von trendigen Cafés bis hin zu gehobenen Restaurants. Zahlreiche Einkaufsmöglichkeiten, darunter kleine Feinkostläden und Supermärkte, befinden sich in unmittelbarer Nähe. Darüber hinaus laden Theater, Kinos und Galerien dazu ein, das lebendige kulturelle Flair des Viertels zu genießen.
Optional: Exklusiver Service für Sie!
Ausstattung auswählen & exklusive Angebote für individuelle Raumausstattung als optionalen Service anfragen
Ansprechpartner
Alexander Rixen
Vertriebsleiter Deutschland
Kontaktieren Sie uns
Wir helfen bei Themen rund um die Immobilie seit 1975.
Kontakt
Ärzte & Apotheker Immobilien A&A GmbH
Lindenstr. 29
21335 Lüneburg
info@aerzte‒apotheker‒immobilien.de
https://www.aerzte‒apotheker‒immobilien.de